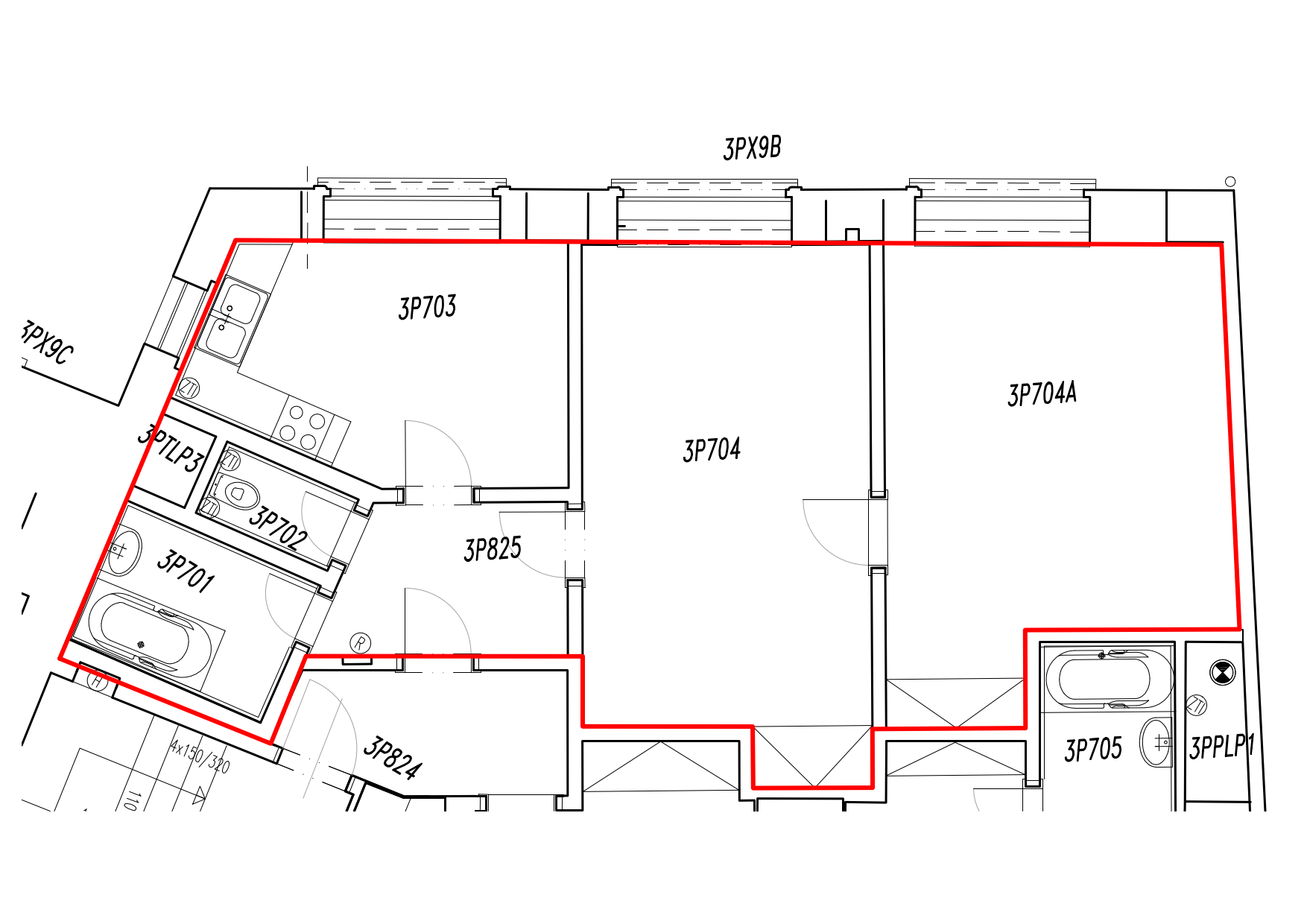
Česká národní banka nabízí k pronájmu byt o dispozici 2+1 a užitné ploše 68.90 m2. Byt je situovaný v 5. nadzemním podlaží v objektu s výtahem na adrese Senovážné náměstí 866/29, Praha 1 (Hypšmanova přístavba). K bytu náleží sklepní kóje o ploše 4,80 m2.
Byt je nezařízený a skládá se ze 2 pokojů, kuchyně, která je vybavená vestavnou kuchyňskou linkou a se všemi potřebnými spotřebiči, a koupelny s vanou a samostatnou toaletou.
Okolí nabízí kompletní občanskou vybavenost s výbornou dopravní dostupností.
Byt bude k dispozici od 1. 12. 2025.
Nájemné 27.188 Kč/měsíc, předpokládané měsíční zálohy na služby 4.400 Kč/měsíc. Součástí podmínek nájemní smlouvy bude složení kauce ve výši měsíčního nájmu vč. záloh na služby spojené s nájmem.
Kontaktní údaje pro získání bližších informací, příp. dohodnutí prohlídky bytu:
Telefon: + 420 705 586 592, +420 734 391 133
E-mail: pronajem.prostor@cnb.cz
